Közép- és nagyblokkos épületek

A megörökölt lakáshelyzet

Győrben 1917-ben átadták az előzőleg a háborús készülődés lendületében fejlesztett Ágyúgyár munkás lakótelepét. A nagy ipari beruházás kiegészítéseként ekkor jutott pénz, és szükség is volt a lakások építésére. A két háború között azonban az országos trendeknek megfelelően Győrben is elhanyagolható mértékű volt a szociális célú lakásépítés. Az egyetlen nagyobb beruházás az éppen az újabb háború miatt fejlesztett Vagongyár bérháza (Urbancsok Tibor, 1942) volt. Ez az egy példa azonban nehezen nevezhető tömeges lakásépítésnek, pedig arra a harmincas években, amikor Győr (Pozsony helyett) új központtá kezd válni, nagy szükség lett volna.

Tehát a második világháború után nem csak a háborús veszteségeket, de a korábbi lemaradás is pótolni kellett a lakásépítésben. Bár az ötvenes évek elejére konszolidálódott annyira a helyzet, hogy különféle megoldásokkal elkezdtek lakások épülni, de az ötvenes évek nagy városépítési hulláma (pl. Dunaújváros) a nyugati határ mellett fekvő Győrig nem ért el. A Győr-Sziget városrészbe helyezett, Kígyó utcai lakótelep első ütemében megjelentek a szoba-konyhás, külön fürdőszoba és wc nélküli “CS” lakások az ötvenes évek elején. Az első tömbszerű, komfortos lakóegységek az ötvenes évek közepén, a szocreál korszakában épültek (Pl. Malom ligeti lakóépületek). Típusalaprajzok alapján, de még hagyományos épületszerkezetekkel.

Csökkentett értékű ("CS") lakások a Kígyó utcai lakótelepen. (fotó: HG)
Csökkentett értékű (“CS”) lakások a Kígyó utcai lakótelepen. (fotó: HG)

Az ötvenes évek végére Győr új, nagy fejlődés előtt álló szocialista ipari városként ismét magára kezd találni. A lakáshiány megoldása nem halasztható tovább. A több, mint egy évtizedes tapogatózás után az 1957-es lakásüggyel foglalkozó kormányrendelet, majd az 1960-ban meghirdetett, országos 15 éves lakásprogram adott végül lendületet a tömeges lakásépítésnek. A hatalmas igény és a 15 év alatt országosan felépítendő 1 millió lakás nagy kihívás elé állította a tervezőket. Győrben különösen is, hiszen nem “csak” a lakóépületek felépítéséről, hanem, elsőként, a hozzájuk tartozó infrastruktúra kiépítéséről is gondoskodni kellett. A városban nem állt rendelkezésre olyan mértékű infrastrukturális ellátottság, amely a több (tíz)ezer lakás építését lehetővé tette volna, így az első beépítések a meglévő közmű- és utcahálózatot használták ki, sokszor a végsőkig.

Ezzel együtt a legégetőbb kérdés az volt, hogy hogyan lehet ennyi lakást felépíteni ennyi idő alatt. Az adott gazdasági körülmények között ez csak nagyfokú iparosított előregyártással tűnt lehetségesnek.

A blokkos építés meghonosítása

A hagyományos építési technológiával épített szocreál lakóépületek után több kísérlet is zajlott, az országos trendeknek megfelelően Győrben is több úton próbáltak elindulni a tervezők. 1958-ra épült fel Fátay Tamás “hétemeletese”, egy előregyártott vasbeton elemekből szerelt vázszerkezetű épület. 1960-ban Harmati János tervei alapján, a GYÁÉV fejlesztésében felépült néhány ház korai kísérletként szendvicspanelből, fürdőszobai térelemet használva. Hamarosan azonban az ún. közép- majd a nagyblokkos szerkezetek kerültek előtérbe.

Kísérleti előregyártott gázszilikát blokkokból épített épület 1953-ból, Budapesten a Gubacsi híd mellett. Még látunk díszítést a blokkokon. (forrás: MÉ 1955/6.)
Kísérleti előregyártott gázszilikát blokkokból épített épület 1953-ból, Budapesten a Gubacsi híd mellett. Még látunk díszítést a blokkokon. (forrás: MÉ 1955/6.)

Lakatos Kálmán győri építész 1954-ben közöl egy cikket a Magyar Építőiparba[1], amelyben az előregyártás tanulmányozását célzó szovjet tanulmányúton szerzett tapasztalatairól ír. Ebben a szendvicspaneles és a blokkos építést is összeveti. A korabeli magyar ipari és gazdasági realitásokat figyelembe véve a homogén anyagú blokkok előállítása tűnt számára is életszerűbbnek. Sokkal egyszerűbb technológiát igényelt és “alapanyaga, a salak úgyszólván minden iparvállalat közelében rendelkezésre áll, ezért termelési és szállítási költsége rendkívül kicsi”.

A külföldi tapasztalatok alapján már viszonylag kiforrottnak mondható technológia importálása gyorsan sikerült. Először Dunaújvárosban (1959), majd 1960-ban Győrött is felépült a szintén dunaújvárosi kohósalak felhasználására alapozott, Vágóhíd utcai könnyűbetonos előregyártó üzem, amely először félemelet magasságú, ún. középblokkos falelemek, majd emelet magasságú, azaz nagyblokkos elemek gyártására volt alkalmas. A gyár kapacítása 450, majd 800 lakás/év volt. Ez látta el először a győri, később a Komárom és Veszprém megyei állami kivitelező vállalatokat az építési alapanyaggal. Ekkortól, 1960-tól ugrik a győri éves lakásépítések száma jóval az országos átlag fölé, sőt az öt kiemelt vidéki város (Debrecen, Győr, Miskolc, Pécs, Szeged) közül 1961-ben Győr építi a legtöbb lakást, több, mint 800 darabot[2].

Az első középblokkos házak a Kígyó utcai lakótelepen. (forrás: Winkler)
Az első középblokkos házak a Kígyó utcai lakótelepen. (forrás: Winkler)

Az első építkezések, a kísérletezések terepe a Kígyó utcai lakótelep volt. Az első ütemben felépült “CS” lakások (1950 k.) után a második ütemben, a Radnóti utcában már középblokkos (1960), míg a harmadik ütemben nagyblokkos (1963 k.) épületeket húztak fel. Bár a középblokkból csak kevés ház épült, a lakások magasabb minősége már ezekben is megmutatkozott:

Az évek múlásával változik a lakásépítési politika is. Hát még mennyit változhat egy évtized alatt. Győr, Köztelek u. páros számú oldala körülbelül 10 évvel öregebb, mint a páratlan számú, ahova tavaly és azelőtt költözhettek be a lakók.

Az egyik oldalon: egy szoba konyhás lakások, a szobába csak a konyhán keresztül lehet jutni. Fürdőszoba nincs, a konyhától függönnyel – vagy anélkül – elkülönített 1 m2-es mosdófülke nyílik. Itt állványon  egy lavór áll, más semmi. A vizet az asztali tűzhelyen melegítik és a falakra csak néhol, kis foltokban mázoltak fel olajfestéket.

A másik oldalon már a lépcsőház is csupa üveg, nagyméretű, vasszerkezetű ablakokkal. Az előszobában nagyméretű beépített szekrény és innen léphetünk be a szobába is. a konyhában beépített konyhabútor, több elemmel, villanytűzhellyel, kétrészes mosogatóval, világos és fényes csempemezőkkel szegélyezve – ahogy a folyóiratok képein láttuk. Az étkezőfülke csupa napfény (…). A lakásokban távfűtés.
Kárpáti Andorné: Új városrészeink arculatáról. in: Városépítés 1965/4. p. 13–15.

Úgy tűnik, fontos pontjához érkezett a magyar lakásépítészet. A blokkokból készültek azok az első országszerte elterjedt és tömegével építhető típustervek, amelyek valóban egyfajta választ adnak a több évtizedbe csak elvi síkon kezelt problémára: Megfelelő minőségű, de gazdaságosan előállítható (városi) lakókörnyezetet adni a társadalom erre rászoruló rétegének a magyar gazdasági viszonyok között. Ezzel együtt alaposan átgondolt alaprajza és építéstechnológiája a későbbi paneles lakótelepek előfutárának tekinthető.

Azonban hamar kiderült, hogy a hatalmas városnövekedési prognózisok valóra váltására a nagyblokk nem kielégítő szerkezet. 1968-ban el is kezdett termelni az immár „klasszikus” szendvicspaneleket ontó győri házgyár. Ám addig, míg az első igazi panelváros el nem kezdett épülni, jobb híján a város minden közművel ellátott “foghíját” betömték blokkos típusépületekkel. A már közművesített, vagy könnyen közművesíthető (elsősorban nádorvárosi) telkek egyre inkább fogytak, a keresgélés már egyre nehezebben ment. A legextrémebb helyzet talán a Baross úti evangélikus templom „üres” kertjébe épített két blokkos ház esetében állt elő. Az átmeneti időszakot arra is felhasználták, hogy a későbbi lakótelepekhez szükséges infrastrukturális elemek (utcahálózat, főgyűjtő csatorna, új víztorony, gázgyár bővítés, ill. később a központi fűtés erőműve) ha vontatottan is, de nagyjából kiépüljenek szabad teret adva a tömeges lakásépítés újabb dimenziójának.

Blokkos épületek Győrben. (fotó: Fátay)
Blokkos épületek Győrben. (fotó: Fátay)
A blokkos épületek szerkezete

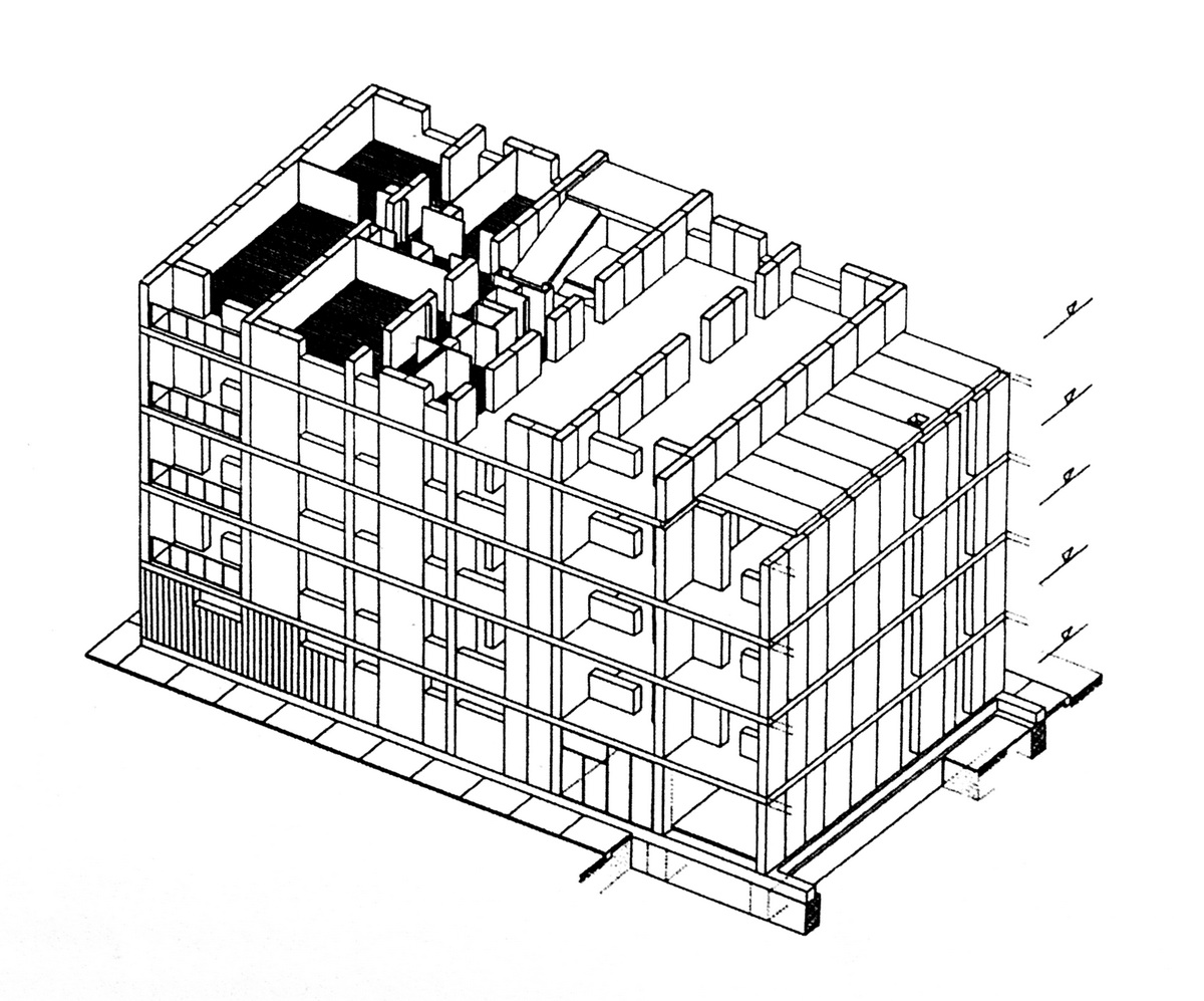
A hazai gyakorlatban 1960-tól 30 cm-es modulrendszerbe illeszthető panelsorozatot kezdek el gyártani. A beton sávalapra teherhordó falként kerülő elemek anyaga homogén, vasalás nélküli, habosított kohó- vagy kazánsalak adalékú könnyűbeton. A gyártási, szállítási és emelési kötöttségeket tekintetbe véve 30 cm-es falvastagságú, 60, 90 és 120 cm (pontosabban 59, 89, 119 cm) széles, előbb félemelet, majd emeletmagas és parapet-paneleket alkalmaztak. Itt már érvényesülni tudott a később a házgyári paneleknél tökélyre fejlesztett modell, hogy minél több szerelési munkálatot a gyárban végezzenek el és a helyszíni munka a lehető legkevesebb legyen. A daruval (lehetőleg minél kevesebbszer áthelyezett darupályán) csak a helyére kelljen „dobálni” a paneleket (a némileg pontosabb építési metódus itt olvasható).

A nagyblokkos ház egy traktusának axonometrikus rajza. (forrás: Pattantyús)
A nagyblokkos ház egy traktusának axonometrikus rajza. (forrás: Pattantyús)

Az épületek egyik külső jellegzetessége a homlokzati parapetpanelek 5–10 cm-es beugrása, síkkülönbsége gyártástechnológiai következmény: Az előállítás során nem lehetett a blokkok mindkét oldalát simára elkészíteni és a pontosan 30 cm-es falvastagság sem volt biztosítható. Mivel az eltérő síkú panelek vakolattal való kiegyenlítése túl sok munkát és anyagot igényelt volna, így a parapetpaneleket eleve vékonyabbra gyártották, így a külső oldali markáns síkváltás (legtöbbször némi színeltéréssel is hangsúlyozva) érzékelhetetlenné tette a kisebb egyenetlenségeket ugyanakkor a panelek belső, lakótér felé eső oldalai egy síkban találkozhattak.

A födémek eleinte alul-felül sík 60 ill. 90 cm széles előregyártott vasbeton teknőelemekből, később a BVM-ben, a blokkos építkezésekhez kifejlesztett, alul-felül sík, 60 ill. 120 cm széles, 19 cm magas, körüregekkel könnyített PK pallókból készültek. A homlokzaton szintenként legtöbbször színében is eltérő, körbefutó sávként meg is jelenik az épületeket összefogó koszorú monolit vasbeton sávja, amelyen a külső térelhatároló salakbeton panelek ülnek. [3]

Épül a Stadion utcai beépítés. (forrás: Régi Győr)
Épül a Stadion utcai beépítés. (forrás: Régi Győr)

A szerkezeti kérdések mellett a tervezéskor esztétikai kérdések is felvetődtek, hiszen a blokkal a hagyományos téglafalazatoktól eltérő arányokat, architektúrát lehetett kialakítani. A fent említett Lakatos-cikkben közölt szovjet példák (melyek közül több még a harmincas évek végéről származik) sokszor utánozzák a téglaarchitektúrából ismert szerkezeteket, pl. boltívek, párkányzatok jelennek meg. A szocreál korszakába eső kísérletek után (pl. Budapesten, a Gubacsi híd környékén) a hazai nagyblokkos épület-típustervek már „őszinte” blokkos épületek. Homlokzati architektúrájuk minden eleme (parapetpanelek beugrása, párkányszerűen körbefutó födémsávok stb.) levezethető a szerkezetből, egyedül talán az első változatok stilizált, de markáns főpárkányzata lehet kivétel.

Érdekes, hogy a mostani utólagos hőszigetelések utáni színtervek is sokszor követték a panelek eredeti sík- és színeltéréseit, de legtöbbször (legalábbis Győrben) a párkányszerű födémsávokat is “visszafestették” az újraszínezett épületekre.

Felújított nagyblokkos épület. (fotó: HG)
Felújított nagyblokkos épület. (fotó: HG)

A kohósalakblokkok hátránya hamar megmutatkozott. A 30 cm-es falvastagság elvileg a 38 cm-es téglafalnak megfelelő hőátbocsátási tényezővel rendelkezett, de a toldási hézagok és a födémsáv megoldatlan hőhídja miatt ez a valóságban nem érvényesült a teljes falfelületre nézve. Vésni nem, vagy nehezen lehetett a paneleket. Az utólagos felületképzés, a vakolás és festés elkerülhetetlen volt, így az élőmunkaigény túl soknak bizonyult. Hátrány volt az is, hogy a salakbetonelemek teherbírása csak legfeljebb négyemeletes épületek építését tette lehetővé.

A legnagyobb negatívum azonban talán az volt, hogy a nagyblokkos épületeknek először csupán kettő, majd három típusváltozata létezett: Egy két- és egy háromszekciós sorolható épület, valamint később egy négyfogatos kislakásos kockaház. Mindhárom öt szintes, lifthatár alatti magasságú. A két sorháztípus alaprajza közel azonos, a kétszekciós előnye, hogy erkély is tartozott a lakások kétharmadához.

(A sorházak Győrben megépült változatai: MOT. I. 99/60., 100/60., 101/60., 104/60. A kockaház: MOT. I. 154/60.)

Belső udvar. (fotó: Fátay)
Belső udvar. (fotó: Fátay)
Az alaprajz

A előremutató, racionalizált alaprajzban a későbbi panelházak előzményét ismerhetjük fel. A folyosóról, amelyen nagyméretű beépített szekrények kaptak helyet, nyílik a konyha és mellette a fürdőszoba. Így egy gépészeti akna elegendő volt. A nagy traktusszélesség miatt megjelenik a hallos kialakítást, amelyet a korai panelekben sem sikerült elkerülni. A későbbiekhez viszonyítva hiányossága az alaprajznak, hogy a kisszoba csak a hallon, azaz a nagyobb szobán keresztül közelíthető meg, bár közvetlen összeköttetést kapott a fürdővel, ami viszont a fürdő használata miatt nem praktikus. A fürdő egyébként a kötött panelméretek miatt igencsak nagyvonalú, 90×180 cm-es ablakot kapott.

Egy szekció általános emeleti alaprajza és homlokzata. (forrás: Pattantyús)
Egy szekció általános emeleti alaprajza és homlokzata. (forrás: Pattantyús)
A telepítés kötött lehetőségei

Az enyhén szólva szegényes típusválaszték Győrben különösen is nehéz helyzet elé állította a tervezőket, hiszen, ahogyan szó volt róla, lényegében foghíjbeépítésként, a meglévő városszövetbe kellett az új épületeket elhelyezni. Az egyik tervező, Fátay Tamás így panaszkodik: „Képzeljünk el egy tánckoreográfiát, ahol a csuklóbilincs természetes kellék.” Mivel a beépítések inkább zártsorúan készültek, a tervezők elég nagy bajban voltak, ha az utca már „elfogyott” de a típusépület még nem ért véget, vagy egy nem derékszögű útkereszteződésben kellett az épületek kapcsolódását megoldani, vagy éppen két meglévő épület közé kellett volna valahogy éppen beférnie az új házaknak…

A győri Bartók Béla úti telepítés helyszínrajza.
A győri Bartók Béla úti telepítés helyszínrajza. A meglévő városszövetbe kellett az új beépítést elhelyezni. (forrás: GYŐRITERV-es kiadvány)

Néhol áldozatok árán, néhol kompromisszumokkal de azért alapvetően sikerült a kérdéseket megoldani. A zártsorú elrendezések általában elfogadható városképet adnak. A szabadon állóan elhelyezett épületek esetében pedig viszonylag tágas, élhető zöldterületek jöttek létre az öt szintes, így nem túl magas házak között. Elfogadhatóságukat semleges, de némi mozgalmasságot mutató, vakolt homlokzatukon kívül leginkább az adja – és ez Győrben különösen is megfigyelhető – hogy általában már a meglévő városszövetbe kerültek beépítésre. Ez a részben kényszerű adottság főleg a későbbi tisztán paneles lakótelepek viszonyában értékelődik fel. Ugyanakkor persze ahol végtelenül sorolva látjuk a blokkos házakat, (Győrben pl. a Stadion utca környékén) ott ezek is meglehetősen unalmassá válnak.

Érdekes történet, hogy győri Bartók Béla úti lakótelepen egy helyen úgy jött volna ki a típustervek sorolása, hogy egy nagy platánt is ki kellett volna vágni. A beépítést tervezőknek sikerült kijárniuk, hogy itt, ezen a ponton egy egyedi tervezésű épületet építhessenek (Lang jános, 1960). A Bartók Béla út hatvanas évekbeli átépítésének egyetlen egyedi tervezésű épülete és a platánfa azóta is áll (ld. lenti kép).

A Bartók Béla úti blokkos beépítés egyetlen egyedi tervezésű épülete egy platánfa miatt épülhetett fel. (fotó: Fátay)
A Bartók Béla úti blokkos beépítés egyetlen egyedi tervezésű lakóépülete egy platánfa miatt épülhetett fel. (fotó: Fátay)
A kiegészítő, szolgáltató épületek

A lakóépületeket kiegészítő szolgáltatóépületek egyedi tervek alapján, kevés előregyártott elemet felhasználva épültek. Földszintes, pavilonszerű építmények: A Bartók Béla úton kisbolt és fodrászat, ABC és “Kristály” vendéglő, a Kígyó utcai lakótelepen a “Márvány” étterem és a “Mazsola” cukrászda stb.

Élelmiszerbolt a lakóépületek mellett. (GYŐRITERV-es kiadvány)
Élelmiszerbolt a lakóépületek mellett. (GYŐRITERV-es kiadvány)

1957 és 1960 között még hagyományos szerkezetekből, egyedi tervek alapján több említésre méltó oktatási épület született (Pl. a Közgazdasági Technikum vagy a Mester utcai iskola). Szerencsés módon ezen a téren a város “előre dolgozott” és az időközben szintén elkészülő középblokkos iskolatípustervből csak egy-két darab megépítésére volt szükség. Ezek szerkezete lényegében megegyezett a lakóépületekével, némi eltérés értelemszerűen a nagyobb terek (tornaterem) tartószerkezetében mutatkozott.

Blokkos lakóépületek között épülő iskola Budapesten. (forrás: MÉ)
Blokkos lakóépületek között épülő blokkos iskola Budapesten. (forrás: MÉ)

HG


Blokkos lakóépület-együttesek Győrben 1960 és 1965 között:

Az alábbiakban felsorolom a Győrben elkészült blokkos épületegyütteseket. A két jelentősebbre, a Kígyó utcai kísérleti telepítésre és a legösszetettebb Bartók Béla úti “rekonstrukcióra” külön bejegyzésben is kitérek még röviden.

Kígyó utcai lakótelep közép- és nagyblokkos épületei

A később meghatározóvá váló építés kísérleti terepe.

lakásszám I. ütem (középblokk): kb. 140 db.
a beépítést tervezte: Szaktilla Imre
lakásszám II. ütem (nagyblokk): kb. 360 db.
a beépítést tervezte: Harmati János
Ugrás a térképre…
Táncsics utca

A meglévő utcahálózatra szervezett telepítésbe egy kis előre-hátra tologatással próbáltak némi életet vinni. A házak telkét a csatornába való bekötés érdekében fel kellett tölteni. Még középblokkos technológiával készült.

lakásszám: 224 db.
a beépítést tervezte: Harmati János
Ugrás a térképre…
Középblokkos épületek a Táncsics utcában. (forrás: GYŐRITERV-es kiadvány)
Középblokkos épületek a Táncsics utcában. (forrás: GYŐRITERV-es kiadvány)
Bartók Béla út környéke

A Bartók Béla út környékének átépítése az 1960 és 1965 közötti időszak legkomplexebb Nádorvárosi projektje majdnem 900 lakással, iskolával, szolgáltatóépületekkel. A meglévő és “használhatónak” minősített épületállomány és utcaszerkezet megtartásával.

lakásszám: 883
a beépítést tervezte: Fátay Tamás
Ugrás a térképre…  ugrás a bejegyzésre…
Kálvária úti beépítés és a Hunyadi és Eszperantó utcai foghíjak

Ezen a környéken tényleg szinte minden létező helyre benyomtak egy házat. A Hunyadi és Eszperantó utcákba foghíjként kerültek be az épületek, a Kálvária úti nagyobb üres telekre pedig két sorban telepítve. Egyetlen szempont a telek leggazdaságosabb kihasználása volt.

lakásszám a Kálvária úton:
lakásszám a foghíjakban:
212 db.
70 db.
a beépítést tervezte: Fátay Tamás
Ugrás a térképre…
Szabolcska utcai beépítés

Öt épületet helyeztek el a Szabolcska utca két oldalán. A Szigethi Attila úthoz közeledve a blokkos házakat egyszer csak felváltják a hasonlóan telepített panelek: elértünk Adyvárosba.

lakásszám: 240 db.
a beépítést tervezte: ?
Ugrás a térképre…
Külső Baross utca

Mindössze két épületről van szó, lényegében a Bartók Béla úti átépítéshez tartozik. Külön kiemelni a kényszerű helyszínválasztás miatt érdemes, hiszen kettő közül az egyik épület az evangélikus templom kertjébe épült.

lakásszám: 72 db.
a beépítést tervezte: Fátay Tamás
Ugrás a térképre…
Zrínyi Miklós utca
lakásszám: 160 db.
a beépítést tervezte: ?
Ugrás a térképre…
Ipar utca, Nagysándor József utca, Stadion utca

A legnagyobb tömegben épült együttes. A Gyárvárosi, még szabad kapacitásokkal rendelkező infrastruktúra lehetővé tette a sok épület építését. A telepítés itt is a meglévő utcahálózatra szerveződik: az Ipar út, Nagysándor József út és Stadion utca által határolt négyszög családi házas övezetét három oldalról “körbefalazták” blokkos házakkal.

lakásszám: 930 db.
a beépítést tervezte: ?
Ugrás a térképre…
Tompa utca

Szintén Gyárvárosban található ez a négy ház.

lakásszám: 112 db.
a beépítést tervezte: ?
Ugrás a térképre…

[1] Lakatos Kálmán: A nagyblokk szerepe a nagyipari rendszerű lakástermelésben. in: Magyar Építőipar, 1954/12. p. 511–514.
[2] ifj. Horváth Béla: Az öt kiemelt város lakáspolitikai helyzete. in: Városépítés 1965/4. p. 24­–27.
[3] Pattantyús-Ábrahám Ádám: Épületrehabilitáció, Terc, Bp., 2013.
[4] Fátay Tamás: Győr – Városépítés és várostervezés 1945 és 1986 között, Győr, 2011
[5] Winkler-Kurcsis: Győr 1939-1999, Műhely, Győr, 2000

7 Comments

Hozzászólás