GYŐRITERV Székház bővítése

tervezte: Bircher László (GYŐRITERV)
épült: 1965
funkció: irodaépület (Győri Tervező Vállalat székháza
hol: 9022 Győr, Czuczor Gergely utca 13. (térkép)
publikáció: Magyar Építőipar, 1966/1. p. 21.

A Győri Tervező Vállalat feladatai a hatvanas évek elején ugrásszerűen megnövekedtek, főként a RÁBA beruházások és a lakótelepek tervezésének elindulása miatt. A jelentős többletmunka vállalati átszervezést és nagy létszámbővítést is igényelt, az akkori székházat, egy historizáló épületet a Bajcsy-Zsilinszky és a Czuczor Gergely utca sarkán kinőtte az iroda. Az elköltözés helyett a meglévő, jó állapotú épület bővítése mellett döntöttek. A Czuczor Gergely utca felőli telekre került egy új szárny, amely 160–180 dolgozónak biztosított elhelyezést.

A székházbővítés Czuczor Gergely utcára néző homlokzata. (forrás: HAP Galéria anyaga)
A székházbővítés Czuczor Gergely utcára néző homlokzata. (Nem túl elegáns “kutyaólakat” is megfigyelhetünk a régi székház tetején…) (forrás: HAP Galéria anyaga)

A magastetős, négyemeletes épület Czuczor utcára néző homlokzatán a negyedik emeletet visszaugratták, így a ház párkánymagassága látszólag nem emelkedik ki szomszédjai közül, egyszerűen simul bele a szűk utca századfordulós képébe. Helyén nem állt jelentős épület.

Alápincézett (kazánház), négyemeletes, magastetős irodaház monolit vb. keretvázzal, monolit vb. lemezfödémmel és kötényfallal. Alaprajzilag szintenként egy darab nagy teres iroda helyezkedik el, kb. 166 m2-es alapterülettel, a hozzá kapcsolódó osztályvezetői szobával és titkársággal. A meglévő irodaház és az új szárny eltérő emeletszintjeit (a régi kétemeletes az új négyemeletes) egy közbeiktatott melléklépcsőház egyenlíti ki. […]

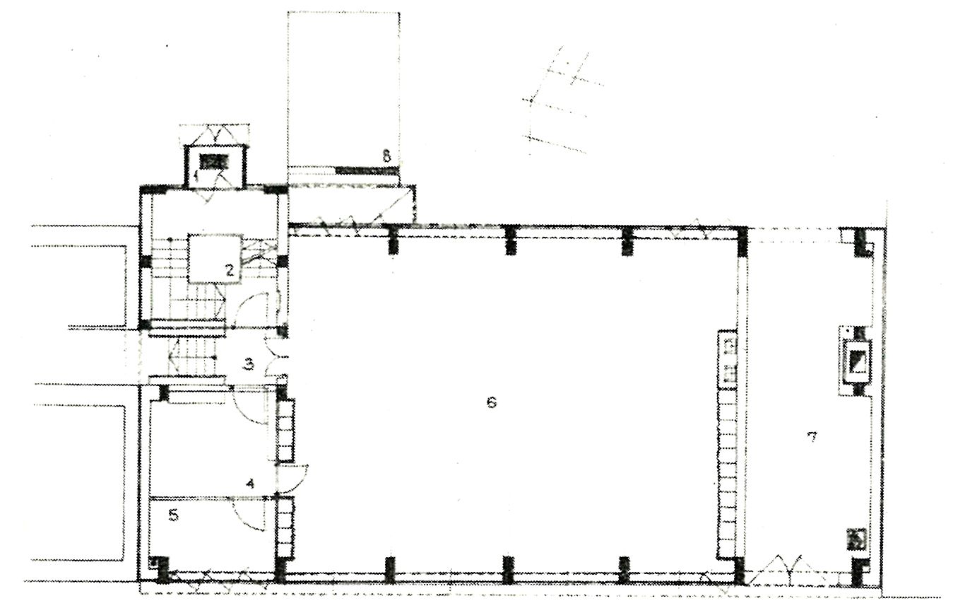
Földszinti alaprajz. 1. szélfogó, 2. lépcsőház, 3. átjáró, 4. titkárság, 5. irodavezető, 6. műterem, 7. kocsiáthajtó, 8. rámpa. (forrás: Magyar Építőipar)
Földszinti alaprajz. 1. szélfogó, 2. lépcsőház, 3. átjáró, 4. titkárság, 5. irodavezető, 6. műterem, 7. kocsiáthajtó, 8. rámpa. (forrás: Magyar Építőipar)

A tervezésnél fő problémaként jelentkezett az utcai és a belső zajszint minimálisra való csökkentése és a kellő erősségű, egyenletes, káprázásmentes világítás. Tervezés és kivitelezés közben lehetőség volt a fenti problémákat megoldó bizonyos szerkezetek kikísérletezésére. A külső (utcai) zaj csökkentését és a hőszigetelést faszerkezetű, forgószárnyas, filetömítésű reluxával ellátott szalagablaksorral és többrétegű parapetfallal értük el. A belső munkatermi zajszint csökkentésére megfelelő rétegződésű és súlyú monolit födémet alkalmaztunk habalátétes PVC-padlóburkolattal, mennyezeti faszerkezetű lamellaráccsal.

A Győri Tervező Vállalat székházbővítésének belső munkatere. (GYŐRITERV-es kiadvány)
A Győri Tervező Vállalat székházbővítésének belső munkatere. (GYŐRITERV-es kiadvány)

A rajztáblákat az ablaksíkokra merőlegesen telepítettük. A termes rendszer szükségessé tette a többszörös elrendezést. Az F csöves lámpatestek, melyekben 2 db. F 29 és 1 db. F 33 csövet helyeztünk el, az ablaksíkokkal párhuzamosan helyeztük el. A megvilágítás erőssége a vízszintes rajztáblákon mérve 450–500 Lux.

[Bircher László: ÉM Győri Tervező Vállalat székházbővítése. in: Magyar Építőipar, 1966/1. p. 21.]

A tervező vállalat megszűnése után (1994) a régi és az új épületrész is egy egy ingatlanbefektető céghez került. Azóta irodaházként üzemel, de a kilencvenes évekbeli felújítás után eredeti karakterét teljesen elvesztette (ld. Google utcakép).

Környezet:

A belváros közvetlen szomszédságában a Czuczor Gergely utca, innen a belváros felé haladva jelentős építkezések helyszíne volt. A hatvanas években épült át a “Hungária tömb”, a hetvenes években pedig a Győri Nemzeti Színház épülete, amely helyén egyelőre foghíjas, később elbontott beépítés látható.

HG


Utcakép:

2 Comments

  1. Méltatlanul elfeledett, kiváló építészről van szó, aki az elmúlt évtizedekben nagy ipari épületegyüttesek, csarnokok megálmodója volt. Csak néhány alkotása: a Győri Nyomda a Kálvária úton, a Győri Szeszgyár épületegyüttese, a szentgotthárdi Opel Gyár több csarnoka, a Magyar Vagon- és Gépgyár számtalan épülete, a szolnoki Kenyérgyár stb.) , melyek a mai napig állnak, igaz, többük jelentős és a kor igényeinek megfelelő, szükségszerű átalakításokon ment keresztül. Méltatlanul mellőzték az első két nagy AUDI összeszerelő csarnok átadásán. Annál nagyobb dicsőség jutot az akkori államfőnek! Méltatlanul nem ejtettek egyszót sem róla, pedig ő álmodta meg és hívta életre az akkor még a Rába Magyar Vagon- és Gépgyár számára ezt a két óriást, ami akkor tényleg hatalmas és merész álom volt. De ez álomból valóság lett és az AUDI-gyár első két csarnoka. Minden tisztelt és elismerés az idős építésznek, apámnak. Nem vitatkozik – hála a jó Istennek! – az utókor azon, hogy vajon kellenek-e az épületei. Nem, mert mind áll és emlékezik megálmodójáról és arról a csapatról, mely létrehozta őket…. Neki is megadatott, hogya mai napig gyönyörködhet bennük, bár időnként azért egy halk kritikus megjegyzés is megüti fülemet……

Hozzászólás