| épült: | 1949–1951 |
| lebontva: | 1995 k. |
| tervezte: | Wágner László (VÁTI) |
| funkció: | Közfürdő, gőzfürdő, fedett uszoda (középület, fürdő) |
| hol: | 9021 Győr, Bisinger sétány (térkép) |
A két világháború közti modern építészeti törekvések Magyarországon (főleg vidéken) némi késsel, a harmincas évek végén kezdtek el beérni. Még a negyvenes évek elején, a háború alatt is épültek jelentős modern épületek (pl. Győrben Körmendy Nándor temploma), és a folyamatot sem a háború törte derékba, hanem az új kultúrpolitikai rendszer, a szocreál. Ugyanakkor az 1945–1951-ig tartó néhány évben több jelentős modern épület született országszerte (elég csak a MÉMOSZ székházra gondolni), amelyek lényegében a harmincas években megkezdett törekvések folytatásának tekinthetők.
Győrben a nyugati határközelség miatt a háború utáni újjáépítés vontatottan, lassan haladt, ám többek között egy jelentős középület, a köz- és gőzfürdő (vagy népfürdő) mégis felépült 1948 és 1951 között. A Wágner László tervei alapján épült ház máig méltó képviselője lenne a városban a háború utáni modern építészet időszakának, ha a kilencvenes évek elején le nem bontják.

Győrben az 1800-as évek óta létezett a közfürdő intézménye, amelyről a Megyei Könyvtár blogján olvashatunk remek összefoglalót. A világháború után nem csak a lakáshiány volt égető probléma, de az általános higiéniás állapotok és lehetőségek is meglehetősen kritikusak voltak. A helyzetre gyors és hatékony megoldásnak látszott új közfürdők létesítése.
A probléma országos volt. 1947-ben például a MÁV írt ki tervpályázatot olyan, országszerte gazdaságosan megvalósítható épületek tervezésére, amelyeket a vállalat dolgozóinak különböző igényeit kielégíthették. Ezek között szerepeltek a közfürdők is. A Tér és Forma így ír a pályázat ezen részéről:
[…] Talán legkevésbé sikerült a pályázatnak a fürdőépület problémáját megoldani – itt a program is kissé túlságosan elasztikus volt. Egy kádfürdőcsoportból álló együttest kellett úgy megtervezni, hogy az későbbi gőzfürdőzés számára is bővíthető legyen. Véleményünk szerint az Államvasutak igazgatóságának azt a komoly szociális célzatú törekvését, hogy a dolgozóinak munkájuk befejezte után fürdési lehetőséget adjon, leghelyesebb volna a munkahelyhez, állomásépülethez kapcsolt fürdőberendezéssel megoldani.
forrás: Tér és Form a 1947/8, 9. old.
A győri fürdőnél azonban mégis sikerült a két funkció egy épületben való elhelyezése. A köztisztálkodást nem csak a kádfürdők, hanem egy gőzmedencés rész is kiszolgálta több kiegészítő funkcióval. Mielőtt azonban rátérnénk az épületre, röviden nézzük meg a fürdő elhelyezését a várostestben.

1948 és 1951 között Lakatos Kálmánnal, Győr városrendezéssel megbízott építészével rendezési terveit többször átdolgoztatták pénz, idő és a politikai akarat függvényében. A kaotikus folyamatnak jó illusztrációja a fent látható, 1951-ben közölt makett, amelyen zöldben úszó modern lakótelepet és lábakra állított városi autópályát éppúgy láthatunk, mint szigorú szimmetriával szerkesztett szocreál keretes beépítést (itt, az északi részen a már álló hat modern ház mellé a szimmetria érdekében még egy, végül soha el nem készült, ugyanolyan hetediket is odaképzelt Lakatos a szimmetria érvényre jutása érdekében…). Amíg a városrendezéssel a győri építészek igyekeztek megfelelni a központi irányelveknek, addig a néhány elinduló beruházást budapesti építészek jegyezték (a Győri Tervező Vállalat 1950-ben alakult). A közfürdő tervezésére a megbízást a VÁTI, azon belül pedig Wágner László kapta. Az egyszintes fürdő a maketten középtájt látható.
A város kelet-nyugati vasúti közlekedési tengelye mentén alakultak ki a vásárterek a XIX. század folyamán (ld. térkép). Ezek a város növekedésével folyamatosan kiszorultak a központból, jelentős beépítetlen területeket adva a belváros mellett. Az háború után az állatvásártér parkosításával a belváros legnagyobb összefüggő zöldterülete alakult ki, míg ennek keleti folytatásában, a városi temető felszámolásával 1948-tól a hatvanas évekig fokozatosan egy alacsony sűrűségű beépítés, az ún. Szent István úti lakótelep épült. A park és a lakóépületek között, “átmeneti” helyzetben készült el a gőz- és közfürdő.

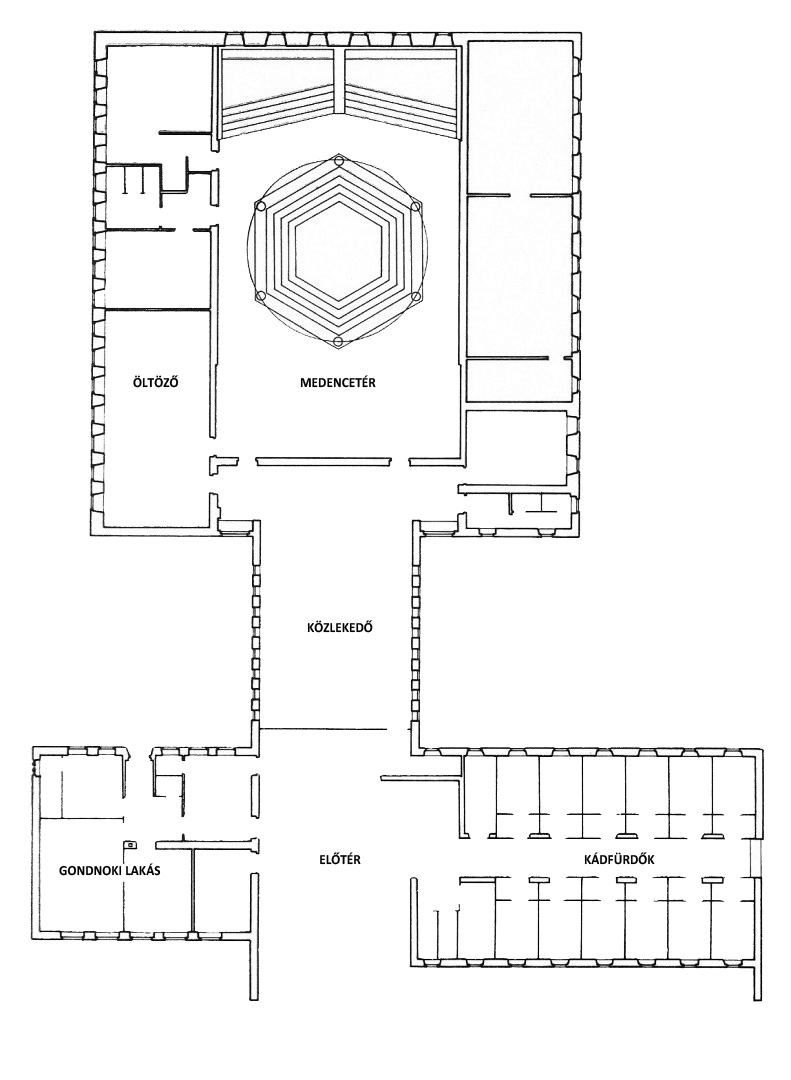
Az épület két nagyobb tömegből áll, amelyek homlokzatburkolati anyagukban is markánsan különböznek. A fehérre vakolt főhomlokzati tömeg enyhe lejtésű födémével, oszlopárkádos kialakításával és kis körablakaival már-már mediterrán hangulatot áraszt. A zárt síkja nagyméretű üvegfelületeben nyílik meg a bejáratnál. Az előtérbe belépve két üzlethelyiséget találtunk (az egyik fodrász volt), majd jobbra haladva juthattunk el a tizenkét különálló egységként kezelt kádfürdőkhöz. A bal oldali részen volt a gondnoki lakás.
Az előcsarnokból előre haladva juthattunk el az öltözőn keresztül a gőzfürdő medence terébe. A kívülről téglával burkolt épületrészben a török fürdők formai hagyományát követve a hatszögletű melegvizes medence fölé egy lyukszerű bevilágítókkal ellátott kupola került. A térben egy hideg és egy forróvizes kisebb medence is volt, valamint innen nyílott a masszőr szobája és egy szauna is. A belsőt Búza Barna mozaikja díszítette (sajnos erről a belső térről eddig nem került elő fotó).

Az épületet országos szinten is jegyezték, erre utal, hogy Gádoros Lajos a háború utáni modern korszak legjelentősebb példái között említi a Magyar Építőművészet 1955-ben megjelent számában:
A felszabadulást követő évek építészetére az elmélet ismeretének hiánya nyomta rá a bélyegét. Sok jószándékú és haladó felfogású építész abból az alapvető tévedésből indult ki, hogy a szocializmus igényének a funkcionalizmus irányzata bizonyára megfelel, mivel annak alapítói és követői a kapitalista társadalomban a haladó és a Szovjetunióval rokonszenvező réteghez tartoztak. A Szovjetunió építészeti gyakorlata szélesebb körben csak 1948 után – az állami tervezőirodák felállítása óta – vált ismeretessé. Az állami tervezést megelőző és annak kezdeti időszakára eső periódus építészeti törekvéseire legjellemzőbb épületeknek talán a “Belügyi”- és a MÉMOSZ székház, a budai “Pontház”, az Agrártudományi Egyetem, a Győri fürdő és a Fehérvári úti rendelő tekinthetők. […]
Gádoros Lajos: Tíz év építészete a középületek kritikájának tükrében, in MÉ 1955/3-4. szám
Az épület pár év után, 1957-ben újabb funcióval bővült. A Fátay Tamás tervezte bővítés célja egyrészt további kádfürdők létesítése, másrészt egy olyan medence létrehozása volt, amely – ideiglenes jelleggel – a győri úszósportnak ad teret rossz időben. A bővítés a meglévő struktúrához alkalmazkodott, azt egészítette ki. Fontos azonban megjegyezni, hogy az “ideiglenes” jelleg a bővítés minőségén is meglátszott, rossz minőségű anyagokból rideg, csupasz teret alakítottak ki.

A fedett uszoda a Győri Népfürdő bővítményeként épül úgy, hogy a meglévő kádfürdő szárnyak tovább bővítik 12 egység fürdőszobával […]. A medencetér ezen épületszárnyak mögé lenne elhelyezve. […]
A medencetér jelenleg csak szükségmegoldásnak épül, mivel a győri vízisportnak nincs lehetősége téli edzésre. Ezért mind a méretek, mind a későbbi járulékos helyiségek csak ezen minimális célnak megfelelően lettek méretezve.
Az úszómedence alapterülete 25,00 x 7,00 m. Vízmagassága 0,90-1,50 m. A fedett csarnok belmérete 30,15 x 11,00 m, belmagassága a födémgerendákig 4,20 m. A csarnokot a meglévő közfürdővel összekötő folyosó kapcsolja össze. A tréning uszoda üzemeltetése a meglévő közfürdő berendezéseivel történik.
forrás: tervdokumentáció, műszaki leírás, Győri Műszaki Tervtár)
Az épület még bővítve is meglehetősen rövid élettartamúnak bizonyult. Egyrészt a város fejlődésével a köztisztálkodás igénye háttérbe szorult (eltűnt), másrészt a Szigetben a hatvanas években megépült a termálfürdő, valamint egy új, korszerű kád- és súlyfürdő. A város léptékéhez méretezett fedett uszoda azonban azóta sem épült. Mindenesetre a gazdaságtalan üzemű gőzfürdő 1972 tavaszán bezárt.

A fürdőt komoly nehézségek mellett koksz- és olajkazánokkal üzemeltették. Üzeme gazdaságtalan volt, mert 10–11 Ft/fő önköltség mellett a belépőjegyért 3–4 Ft-ot kértek. A lakosságnak mégis nagy szolgálatot tett, mint tisztasági fürdő, majd 1957-től mint fedett uszoda és tréningmedence is.
Befogadóképességére csak az évi forgalomból lehet következtetni – mintegy 300 főnyi lehetett a napi kapacitása. […] Kihasználtságát a termálfürdő üzembe helyezése kedvezőtlenül befolyásolta, mert a fürdővendégek egy része oda pártolt át.
Ez a fürdő 1972. április 30-ig működött, amikor sport- és egyéb célokra más szervezetek veték át, de nem használják vízi sportra. Sokan ma is sajnálják megszűnését.
Győri Tanulmányok 3. (1974)
Az épület több mint két évtizedig elhagyatottan állt, csak a gondoki lakást lakták. A kilencvenes években lebontásra került, helyén ma a megyei Kereskedelmi- és Ipari Kamara épülete áll. Nehéz kérdés, hogy bár az eredeti funkció nem bizonyult időtállónak, formája és építészettörténeti jelentősége miatt nem lehetett-e volna talán mégis megtartani az épületet funkciójának átgondolásával.

A Győri Műszaki Levéltárban az eredeti engedélyezési tervek egy része fellelhető. Ezek alapján készítettem egy homlokzati rajz rekonstrukciót némi emlékül a rövid építészettörténeti korszak jellegzetes, de ma már nem látható győri épületének.

Hartmann Gergely
HA TETSZETT A BEJEGYZÉS, LIKE-OLD A MODERN GYŐR-T A FACEBOOKON IS!
források:
- Tér és Form a 1947/8, 9. old.
- MÉ 1955/3-4. szám
- Győri Tanulmányok 3. (1974) (Köszönet Kozma Endrének)
- újabb összefoglaló: http://gyorikonyvtar.blogspot.hu/: Helytörténeti kalandozások 52.: A régi gőz-, kádfürdő és a fedett uszoda épületének története
https://regigyor.hu/belvaros/fedett-uszoda-epitese-1951-57/