Tovább a tartalomra

Győr építészetéről a koramoderntől a nyolcvanas évekig

  • Térképes adatbázis
  • Kategóriák
    • Épületek funkció szerint
      • Ipari épület
      • Középületek
        • Fürdők
        • Irodaházak
        • Kereskedelmi épületek
        • Oktatási épületek
        • Sport
        • Vendéglátás
      • Közlekedési épületek
      • Lakóépületek
    • Épületek korszakok szerint
      • 1918-1945
      • 1945-1951
      • 1951-1956
      • 1956-1970
      • 1970-1980
      • 1980-1990
    • Tervezők
      • Építészek szerint
      • Tervezővállalatok szerint
    • Városrészek szerint
      • Belváros
      • Nádorváros
      • Gyárváros
      • Sziget
      • Adyváros
      • Marcalváros
      • Újváros
      • Révfalu
    • Lakótelepek, városfejlesztési területek
      • Szent István úti lakótelep, 1948-1965
      • Kígyó utcai lakótelep, 1950-1965
      • Malom liget, 1952-1955
      • Szent István út északi lakóházsora, 1959-1965
      • Bartók Béla úti blokkos beépítés, 1963-1965
      • Ady Endre Lakótelep (Adyváros), 1967-1977
      • Teleki utcai paneles beépítés, 1977-1980
      • Marcalváros (Kun Béla Lakótelep) I., II., 1975-1989
    • Lebontott épületek
    • Védett épületek
  • Archív térképek
    • 1617 (A város rekonstruált helyszínrajza)
    • 19. sz. közepe (II. katonai felmérés részlete)
    • Várostérkép a XIX. század végéről
    • 1910 (Győr Szabad királyi város térképe)
    • 1935 körüli térkép
    • Rendezési terv, 1947
    • 1951, Győr belváros műemléki térképe
    • Győr általános rendezési terve, közlekedés, 1967
    • 1968 (Panoráma)
    • 1971 (Kartográfia térkép)
    • Győr belváros rendezési terve, 1983
  • A honlapról
  • Bibliográfia, források
  • Kapcsolat

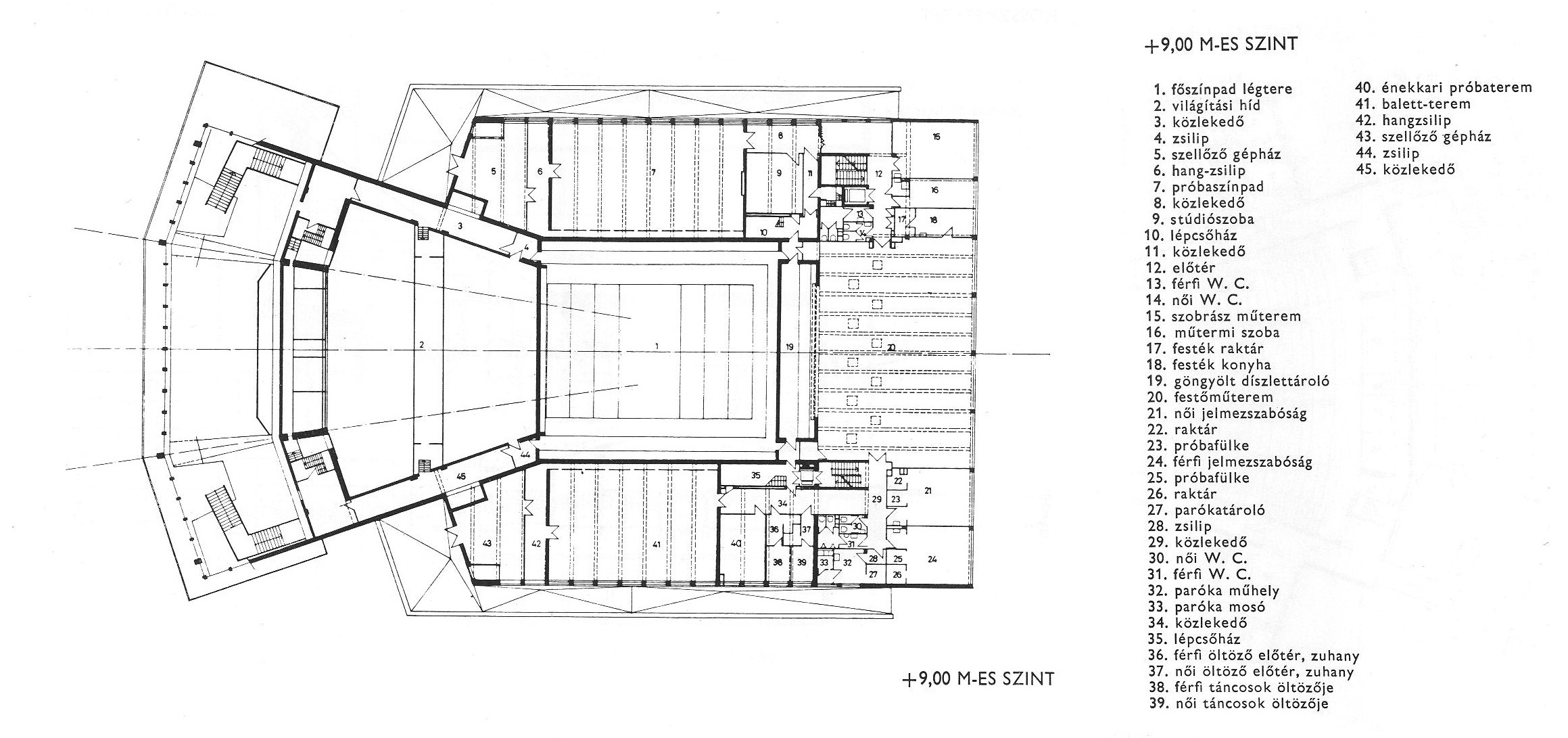
Győri Nemzeti Színház

2013. március 2. Return to: Győri Nemzeti SzínházFull resolution (2319 × 1091)

Image navigation

Previous Image
Next Image
Alaprajz +9,00 méteren. (forrás: GYŐRITERV-es kiadvány)

Kategóriák:

Keresés

Adyváros Bartók Béla úti beépítés belváros Centrum tömb Cserhalmy József előregyártott foghíj Fátay GYŐRITERV Győr Győri Tervező Vállalat Harmati János ipari épület irodaház iskola közlekedés középület Lakatos Kálmán lakótelep lakótelep intézménye lakóépület Lang János lebontva Lengyel József Lőrincz József modern nyersbeton nádorváros panel Pilt Rudolf Rába-Hídüzem Szent István út szocreál Sztár garázs tömb színház templom típusterv UVATERV áruház új városközpont
Működteti a WordPress.com.
  • hozzászólás
  • Feliratkozás Feliratkozva
    • moderngyor.com
    • Already have a WordPress.com account? Log in now.
    • moderngyor.com
    • Feliratkozás Feliratkozva
    • Regisztráció
    • Bejelentkezés
    • Rövidített hivatkozások másolása
    • Tartalom jelentése
    • View post in Reader
    • Feliratkozásaim kezelése
    • Testreszabás sáv összecsukása