| épült: | 1972-75 |
| tervezte: | Horváth Andor (GYŐRITERV) |
| funkció: | Az Állami Termékgazdálkodási Igazgatóság győri közraktára (ipari épület, raktár) |
| hol: | 9027 Győr, Kandó Kálmán út, 17. (térkép) |
| kapcsolódó dokumentumok: | ÁTI Közraktára, Győr (MÉ 1976/3.) A Győri Tervező Vállalat tájékoztatója, 1976/1 – 16-20. oldal ÁTI Győri Közraktár, 1976 k. (GYŐRITERV-es kiadvány) 31. ÁÉV homlokzati falpanel csomópontok – a homlokzat szerkezetéről |

Az ország raktárhálózatának fejlesztése hosszú évekig elmaradt a gyorsan növekvő szükségletektől. A hiány tetemes volt. Ennek ismeretében határozta el a kormány a hatvanas évek elején közraktárak létesítését. A győri közraktár is e központi program megvalósítása során épült. A közraktárak számottevő részben a külkereskedelmi forgalom lebonyolításában jelentkező tárolási feladatokat hivatottak ellátni. Ezek közé sorolható az export- és importáruk átvétele, rövidebb-hosszabb ideig történő tárolása, majd az áruk továbbirányítása a diszpozíció szerinti rendeltetési helyre. [1]
Több helyszín megvizsgálása után az építők végül az Iparcsatorna déli végződése melletti területet jelölték ki az új raktár építésére. ez közel esett mind a vasúthoz, mint az 1-es főúthoz, és a csatorna miatt a vízi szállítás kapcsolata is adott volt. Ugyanakkor az új létesítmény a RÁBA-Gyár épülő csarnokainak közvetlen szomszédságába is került.
A vízi kapcsolat mindenesetre csak elvi lehetőség, mert az Iparcsatorna, amelyet eredetileg az Ágyúgyár termékeinek szállítására kezdtek el építeni az I. világháború előtt, soha nem készült el, soha nem használták ipari hajózásra. (Pedig a közraktár legvagányabb építészeti elemei éppen a csatorna fölé nyúló, rikító vörös acél darupályák — soha nem használták ezeket.)

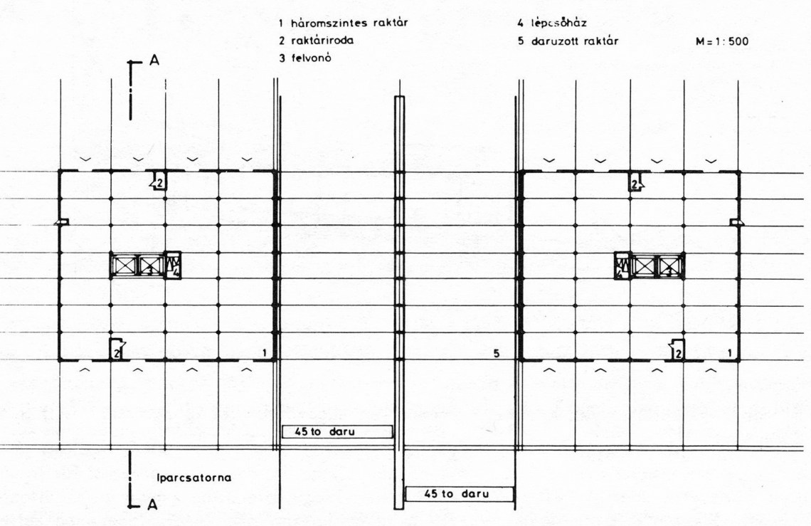
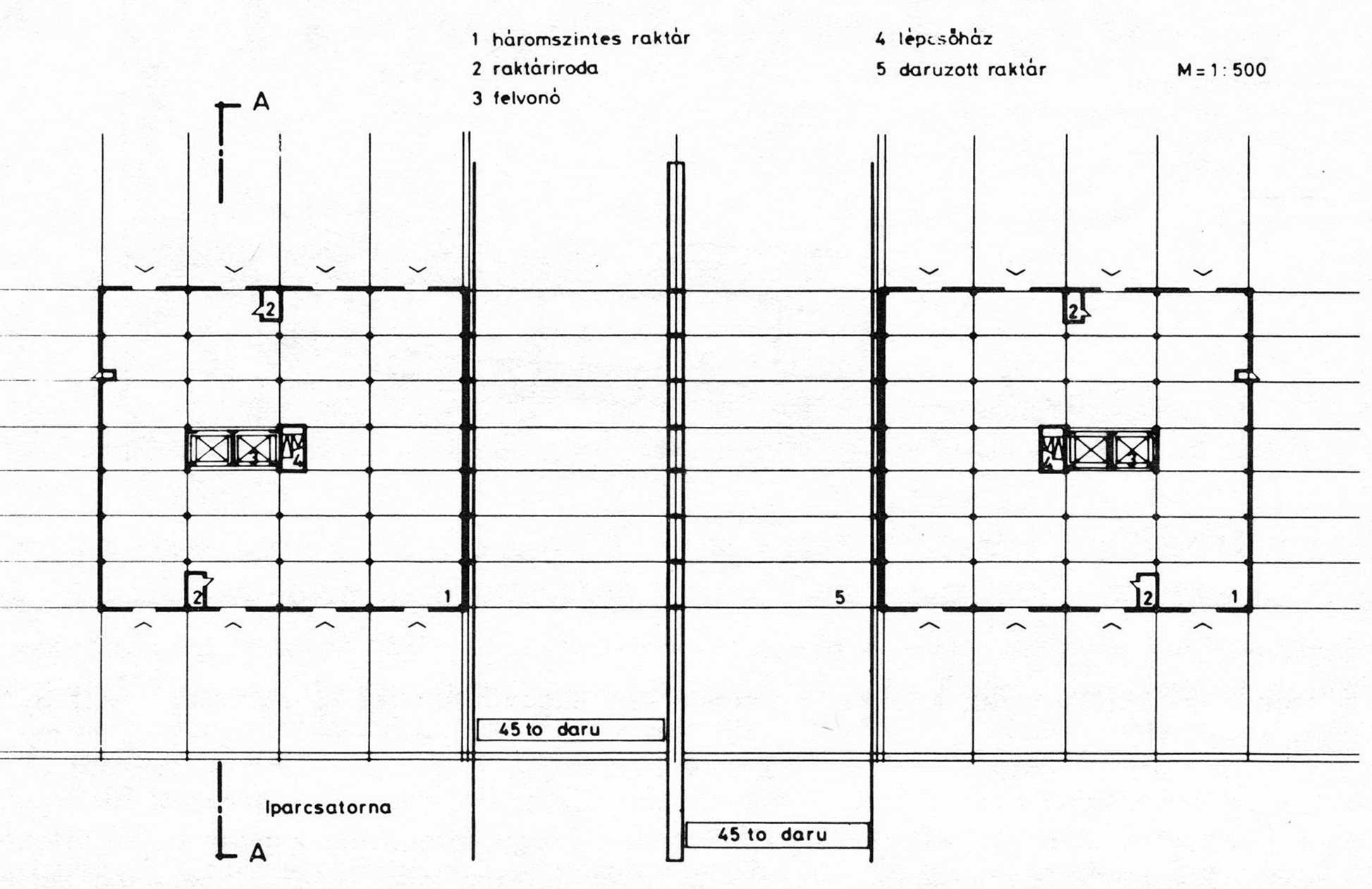
A raktárépület megépült létesítményei:
- Két, egyenként háromszintes raktárépület, a két épület között fedett, daruzott tárolótérrel
- szabadtéri tároló
- hideg tároló (fedett tároló szín)
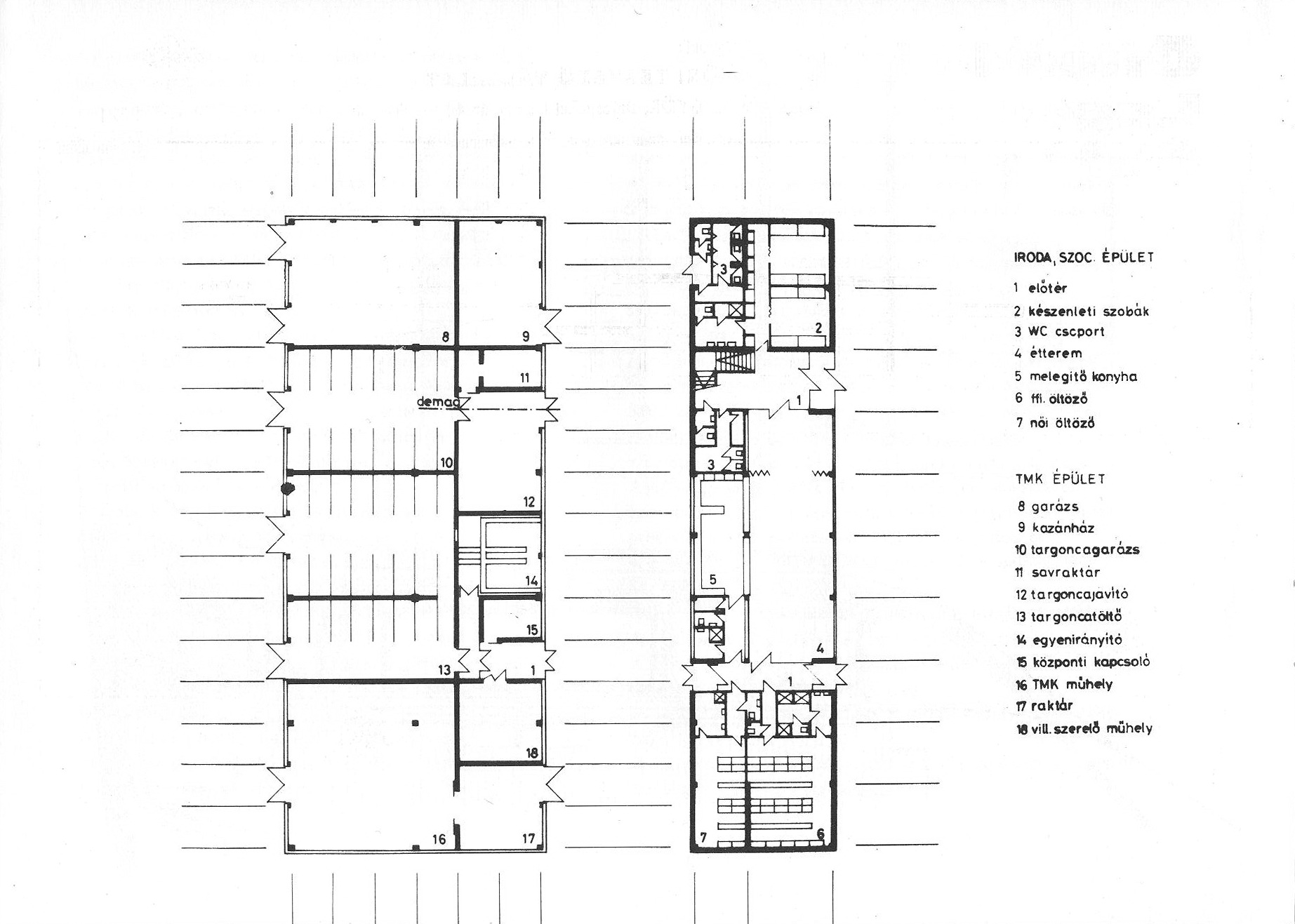
- iroda- és szociális épület
- TMK épület
- porta épület

A raktárépület fő tartószerkezetei monolit vasbetonból készültek. A pillér rasztere: 6 x 12 méter. Az alulbordás vasbeton födémek hasznos teherbírása 2000 kg/m2. A földszinti padló terhelhetősége: 6000 kg/m2. A külső térelhatárolás előre gyártott, emeletmagas szendvics szerkezetű, bordás vasbeton panelokkal készült. A panelok külső felülete fehér MUROVILL festést kapott.
A raktárhelyiségek belmagassága a földszinten hat méter, az emeleti szinteken öt méter. Raktáranként két, egyenként 5000 kg teherbírású, nagy járószékű teherfelvonó működik, mellettük vasbeton szerkezetű lépcső, szépén vészlépcsővel. […]
A raktárkomplexum összességében egy rendezett ipari üzem benyomását kelti. Az építmények közül kiemelkedik a két háromszintes raktárépület tömege a közöttük lévő fedett daruzott tárolóval. A lényegében zárt – nyílások nélküli – épülettömegen igen jól érvényesül a bordás homlokzati panelek markáns függőleges vonalazása. Igen kedvező a raktárépület színösszhangja is. A törtfehér raktártömegek között igen jól érvényesül a darupályák kadmiumvörösre mázolt acélszerkezete. [1]
Harmati János 1976-os leírásával ma is egyetérthetünk.
jegyzetek:
[1] ÁTI Közraktár, Győr. Szerkesztette: Harmati János. Győr, GYŐRITERV-es vállalati kiadvány,197?.
















